string(4) "3095"

Пеллетный котел 0.3 МВт в Уфе

Версия
для печати
В наличии на складе Цена в рублях с НДС 818 000
Получите скидку
у менеджера
Цена на пеллетный котел 0.3 МВт с доставкой от 818 000 рублей с НДС
Вид топкиРетортная, Автоматическая
Максимальная тепловая мощность, МВт0.3
ТопливоПеллеты
Отапливаемая площадь, м²2300-3300
Доставка ТК в г. Уфа и по России
Безналичный расчет
Подобрать котел по мощности
Опросный лист
Эту продукцию можно
купить в лизинг
  • Технические
    характеристики
  • Описание
    товара
  • Комплект
    поставки
  • Дополнительно
    потребуется
  • Подключение и
    монтаж
  • Сертификаты и
    гарантии
  • Отзывы о
    продукции
  • Видео
    обзор
  • Подбор
    котла

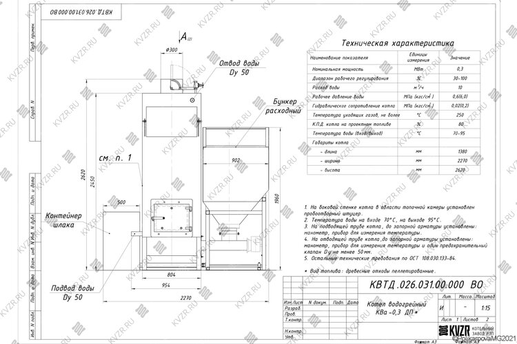
Технические характеристики котла на пеллетах 0.3 МВт

Тип Котел КВа Д
Тип отопительного котла Твердотопливный
Бренд HEATEXPERT
Марка Котел КВа ДП (пеллеты)
Вид топки Ретортная, Автоматическая
Максимальная тепловая мощность, МВт 0.3
Максимальная тепловая мощность, кВт 300
Максимальная тепловая мощность, Гкал 0.26
Диапазон регулирования мощности, % 30-100
Диапазон регулирования мощности, кВт 90-300
Топливо Пеллеты
Низшая теплота сгорания проектного топлива, кКал/кг 4900
Влажность топлива, % 20
Фракционный состав топлива, мм 6-10
КПД котла на ПЕЛЛЕТАХ, не менее, % 80
Расход ПЕЛЛЕТ среднечасовой за отопительный сезон, кг/ч 38
Расход ПЕЛЛЕТ при максимальной нагрузке котла, кг/ч 66
Расход условного топлива, кг/ч 46
Максимальная температура воды на выходе из котла, °C 115
Минимальная температура воды на входе в котел, °C 55
Срок автономной работы при минимальной нагрузке до 1 сутки
Срок автономной работы в среднем за отопительный сезон 14 часов
Срок автономной работы при максимальной нагрузке котла 8 часов
Давление воды, не более, МПа (кгс/см²) 0.15-0.3 (1.5-3)
Номинальный расход теплоносителя, м³/ч 11
Расход теплоносителя через котел min-max, м³/ч 8-14
Гидравлическое сопротивление при номинальном расходе, МПа (кгс/cм²) не более 0.07 (0.7)
Аэродинамическое сопротивление, Па (мм. вод. ст.) 35 (3.5)
Разряжение в топочной камере, Па (мм. вод. ст.) 20-40 (2-4)
Объем уходящих газов, м³/ч 1520
Температура уходящих газов, не более, °С 250
Тяга Естественная
Водяной объем котла, л 125
Объем топочной камеры, м³ 0.6
Объем бункера, м³ 0.8
Объем штатного бункера, (насыпная плотность 650 кг/м³), кг 520
Размер топочной камеры, длина*ширина*высота, мм 690х690х1265
Присоединительные размеры по водяному тракту, Ду 50
Присоединительные размеры газохода уходящих газов, ширина*высота / сечение, мм/м² Ду 300/0.07
Габаритные размеры блока, длина*ширина*высота, мм 960х960х2165
Габаритные размеры установки, длина*ширина*высота, мм 1380х2270х2620
Масса, кг 1200
Конструкция котла водотрубная, вертикальная
Количество контуров Одноконтурный
Размещение Напольный
Тип камеры сгорания Закрытый
Управление Электронное
Принцип работы твердотопливного котла Классический
Энергонезависимый Нет
Тип питания Трехфазное
Встроенный циркуляционный насос Нет
Встроенный расширительный бак Нет
Отапливаемая площадь, м² от 2300 до 3300
Отапливаемый объем, м³ от 6900 до 10000
Энергоэффективность Высокая

Промышленный пеллетный котел 0.3 МВт

  • мощность 300 кВт, 0,3 МВт, 0,26 ГКал;
  • полностью автоматический режим работы котла – подача пеллет, запуск, контроль горения, противопожарная безопасность;
  • возможность работы в ручном режиме, для сжигания пеллет;
  • вихревая топка с приемным бункером и автоматической подачей пеллет в котел;
  • температура нагрева теплоносителя от 95 до 115 градусов;
  • топливо – пеллеты размером до четырех см;
  • давление теплоносителя от 0.1 до 0,3 МПа;
  • отапливаемая площадь помещения от 2300 до 3300 м2, отапливаемый объем помещения от 6900 до 10000 м3 (в зависимости от максимальной температуры в регионе эксплуатации).

Автоматический пеллетный котел мощностью 0.3 МВт применяется на предприятиях лесопереработки, деревоперерабатывающих предприятий и в сельском хозяйстве, для сушильных камер, для теплиц, для производства, отопления промышленных помещений и зданий.

Котел отопления на пеллетах 0.3 МВт - устройство и описание

Котел на пеллетах 0.3 МВт для отопления и производства, изготавливается водотрубным стальным, с бункером для пеллет, шнековым питателем, вихревой топкой, котельным блоком с топочной камерой для горения пеллет и конвективными пакетами для нагрева воды до требуемой температуры.

Топка вихревого водогрейного котла 0.3 МВт на пеллетах представляет собой опорный каркас под установку котла. Футеровка топки выполняется из огнеупорного кирпича и шамотного бетона для создания пояса зажигания для сжигания пеллет. Вихрь создается раздельной подачей воздуха. Над кирпичным подом устроена топочная камера, куда подается воздух и происходит горение топлива. Весь объем окружен трубами, воспринимающими тепло и нагревающие воздух. Топочная камера газоплотная, что исключает присосы воздуха и дымление в котельной. Первичный воздух подается высоконапорным вентилятором в зону подачи топлива горение и создание первичного вихря. Вторичный воздух подается вентилятором среднего давления слоя для дожига горючих и поддержания вторичного вихря.

Шнековый питатель подает пеллеты из расходного бункера в котел. Приводом питателя служит мотор редуктор. В конструкции шнекового питателя дополнительно предусмотрено воздушное охлаждение выходного узла, что препятствует возможности воспламенения топлива в питателе и увеличивает надежность работы.

Бункер для пеллетного котла располагается на общей раме совместно с приводом питателя. Конструкция бункера под древесное топливо и узел соединения со шнековым питателем позволяет полностью опорожнять бункер за счет питателя топлива.

Водяной котел отопления на пеллетах 0.3 МВт состоит из топочной камеры экранированной газоплотными сварными панелями с вертикальными трубами соединенных раздающими и собирающими коллекторами. Обмуровка выполняется из тепловой обшивки и декоративных листов. Выход газов осуществляется сзади и сверху топочного блока.

Котел с автоматической подачей пеллет 0.3 МВт – принцип работы

Твердотопливный котел на пеллетах 0.3 МВт промышленный работает полностью автоматически. Автоматика осуществляет автоматический розжиг, запуск, работу регулировку давления и остановку котла в случае превышения допустимых параметров работы. Автоматика осуществляет автоматическую подачу топлива с контролем производительности по заданной температуре теплоносителя. Подача воздуха осуществляется в зависимости от объема поданного древесного топлива. В котле с автоподачей пеллет предусмотрена система пожаротушения в случае воспламенения топлива в топливопроводе.

Комплект автоматики состоит из щита управления котлом, контрольно измерительных приборов КИП и исполнительных механизмов.

Промышленный котел на пеллетах мощностью 0.3 МВт работает с автоматикой, включающей в себя контроль и регулировку следующих параметров:

  • разряжения в топочной камере;
  • давления теплоносителя на выходе;
  • температуры теплоносителя на выходе;
  • содержания кислорода в дымовых газах;
  • наличие давления в системе пожаротушения топливопровода;
  • контроля факела;
  • контроля минимального расхода теплоносителя.

На случай возникновения необходимости сжигания дополнительно крупногабаритных древесных отходов, автоматика может переключиться в ручной режим работы и подача топлива осуществляется вручную кочегаром через загрузочную дверку.

Подключение и монтаж промышленного котла, который работает на пеллетах мощностью 0,3 МВт производятся по проекту.

В зависимости от количества котельных агрегатов, наличия или отсутствия теплообменников существуют различные варианты схем подключения котла.

Комплектация твердотопливного котла на пеллетах 0.3 МВт

Комплектация котла на пеллетах на твердом топливе включает в себя:

  • котельный блок;
  • загрузочный бункер;
  • шнек;
  • топку;
  • предохранительные клапаны;
  • вентиляторы первичного и вторичного воздуха;
  • запорную арматуру в пределах котла;
  • контрольно измерительные приборы;
  • дымосос;
  • воздуховоды вторичного воздуха.

Автоматика приобретается отдельно, ее рекомендуется заказать по техническому заданию, с учетом ваших пожеланий.

Купить котел 0 3 МВт на пеллетах и все необходимое для его подключения вы можете на нашем заводе. Также наш завод оказывает услуги по проектированию, монтажу, шеф монтажу и пуско-наладке котельных.

На заводе изготовителе отопительный российский котел 0.3 МВт на пеллетах подвергается гидравлическому испытанию давлением 0,9 МПа (9 кгс/см2).

Срок эксплуатации отопительного котла на пеллетах 10 лет. Наш котел может рассматриваться, как аналог котлов Гефест и ковровских котлов на пеллетах. Действующая цена на котел на пеллетах 0.3 МВт указана на сайте. Производство пеллетных котлов по техническому заданию завод осуществляет в течении 10-20 рабочих дней.

Комплект поставки котла на пеллетах 0.3 МВт

Цена водогрейного котла на пеллетах 0.3 МВт в Уфе включает в себя котельный блок в изоляции, ретортную топку, шнек и бункер для пеллет, вентили, затворы, манометры, термометры, вентилятор поддува и предохранительные клапаны. Ниже приведена подробная информация.

Дополнительное вспомогательное оборудование для работы котла на пеллетах 0.3 МВт

Для эффективной и надежной работы котла на пеллетах 0.3 МВт в вашей котельной вам потребуется дополнительное оборудование - автоматика ЩУК, дымосос, насос сетевой и подпиточный, золоуловитель (по желанию), газоходы и переходники для газового тракта, дымовая труба. Мы предлагаем рассмотреть типовые варианты комплектации.

В случае если у вас на объекте уже имеется насосное и тягодутьевое оборудование, мы можем проверить совместимость котла на пеллетах 0.3 МВт нашего производства и вашего оборудования.

Можем изготовить нестандартные узлы для выполнения быстрого монтажа котла - газоходы и узлы обвязки.

Типовую схему монтажа котла вы можете посмотреть во вкладке схемы подключения и монтаж.

Полностью автоматическое регулирование работы котла:

  • ручной розжиг котла;
  • автоматическое поддержание заданной температуры;
  • погодозависимое регулирование;
  • контроль уровня топлива в топливном бункере (при использовании пеллет);
  • автоматическое пожаротушение, в случае возгорания в шнеке;
  • возможно подключение удаленного контроля параметров работы котла посредством GSM, Ethernet, WiFi модуля (доп опция)

Цена 340 000 рублей с НДС

Используется в качестве подпиточного насоса в промышленных отопительных котельных

Цена 44 600 рублей с НДС

Используется в качестве подпиточного насоса в промышленных отопительных котельных

Цена 43 900 рублей с НДС

Используется в качестве сетевого насоса в промышленных отопительных котельных

Цена 124 000 рублей с НДС

Схемы подключения и монтаж котла на пеллетах 0.3 МВт

Водогрейный твердотопливный стальной отопительный пеллетный котел 0.3 МВт, предназначен для получения горячей воды номинальной температурой на выходе из котла от 95 до 115 °С рабочим давлением до 0,6 (6,0) МПа (кгс/см), используемой в системах централизованного теплоснабжения на нужды отопления, горячего водоснабжения. Устанавливается в производственных, промышленных и отопительных котельных.

Схема подключения и монтажа водогрейного промышленного котла на пеллетах 0.3 МВт
Смотреть
Скачать

Схема подключения и монтажа котла на пеллетах 0.3 МВт

Монтаж водогрейного котла на пеллетах 0.3 МВт и вспомогательного оборудования в котельной должно производиться в соответствии с проектом и учетом требований СП 89.13330. 2016 «Котельные установки. Актуализированная редакция СНиП II-35-76» и «Правил устройства и безопасной эксплуатации паровых котлов с давлением пара не более 0,07 МПа (0,7 кгс/см2), водогрейных котлов и водоподогревателей с температурой нагрева воды не выше 388 К (115 С). Правильный монтаж котла – залог его надежной и долгой работы.

Чтобы правильно подключить пеллетный котел 0.3 МВт в котельной необходимо оставить проемы для обслуживания оборудования во время эксплуатации. На представленной здесь схеме указаны их минимальные размеры. Кроме того, в данной примерной схеме монтажа водогрейных котлов и оборудования указан перечень минимально необходимого вспомогательного оборудования для правильной работы котла.

К вспомогательному оборудованию при подключении промышленного водогрейного твердотопливного котла относят - щит управления котлом, насос циркуляционный, насос подпиточной воды, бак запаса воды, расширительный мембранный бак, дымовую трубу, систему газоходов и дымосос, золоуловитель (по желанию).

В случае если подпиточная вода не соответствует по своим характеристикам требованиям к питательной воде, необходимо предусмотреть систему водоподготовки котловой воды.

Для котельных 1 категории, являющиеся единственным источником тепла системы теплоснабжения и обеспечивающие потребителей первой категории, не имеющих индивидуальных резервных источников тепла, необходимо предусмотреть полное резервирование оборудования – подключение 2 (двух) котлов, насосов, ТДМ. Пунктиром обозначено оборудование для резервирования.

Для котельных 2 категории, включающие в себя промышленные и производственные котельные резервирование нужно предусматривать по необходимости.

Схема тепловая котла
Смотреть
Скачать

Тепловая схема подключения котла

Образец тепловой схемы подключения оборудования в котельной приведен на данной схеме. При эксплуатации очень важно грамотно осуществить подключение оборудования, установить все контрольно измерительные приборы, для контроля параметров работы котельной и запорную арматуру для оперативного переключения потока теплоносителя при плановой или аварийной остановке оборудования. Данную схему можно использовать как пример для разработки под свой объект или заказать у нас разработку индивидуальной схемы для вашей котельной.

Дополнительные услуги

Сертификат и качество котла на пеллетах 0.3 МВт HeatExpert

Водогрейные котлы производства Котельный завод "РЭП" соответствуют строгим стандартам качества и безопасности. Завод производит котлы в соответствии с требованиями ГОСТ 30735-3001 по Техническим Условиям завода.

Котлы имеют все необходимые сертификаты соответствия Техническим регламентам Таможенного союза:

  • ТР ТС 010/2011 «О безопасности машин и оборудования»
  • ТР ТС 032/2013 - «О безопасности оборудования, работающего под избыточным давлением».

Водогрейный пеллетный котел 0.3 МВт имеет гарантийный срок 24 месяца и срок работы при соблюдении правил монтажа и эксплуатации оборудования 10 лет.

Патент на топочное устройство твердотопливного котла .jpg
Патент на топочное устройство твердотопливного котла
Сертификат для водогрейных котлов .jpg
Сертификат на водогрейные котлы

Отзывы о продукции

Отзыва о товаре пока нет, будьте первыми!

Котельный завод производит котел для отопления на пеллетах мощностью 0.3 МВт для производства, сушильных камер, теплиц и промышленных твердотопливных водогрейных котельных.

Смотреть видеообзор на
Подберите необходимую мощность котла для вашего объекта
Тип здания
Регион
Населенный пункт
Вид топлива
Наружный объем здания (м3)
Отапливаемый подвал

Как подобрать мощность котла для вашего объекта

Подобрать мощность котла по площади важно учитывая не только площадь и объем здания, но и тип зданий и климатические данные региона.

На нашем сайте калькулятор расчета мощности котла учитывает тепло, требуемое на возмещение тепловых потерь через строительные конструкции и потери, вызываемые инфильтрацией (проникновением) наружного воздуха, через их неплотности и периодически открываемые двери.

Наружный строительный объем здания должен определяться умножением площади горизонтального сечения, взятого по внешнему обводу здания на уровне первого этажа на полную высоту здания, измеренную для панельных зданий: от уровня чистого пола (нулевой отметки) до верхней плоскости теплоизоляционного слоя чердачного покрытия, для остальных строений от уровня земли.

Расчетная температура воздуха в отапливаемых зданий принимается в зависимости от типа и назначения здания:

  • Гостиница, общежитие, административное здание, жилые дома + 20 °С;
  • Детские сады, ясли, поликлиники, амбулатории, диспансеры, больницы + 22 °С;
  • Высшие и средние специальные учебные заведения, общеобразовательные школы, школы интернаты, лаборатории, предприятия общественного питания, клубы, дома культуры + 16 °С;
  • Театры, магазины, пожарные депо + 15 °С;
  • Кинотеатры + 14 °С;
  • Гаражи + 10 °С;
  • Бани + 25 °С.

В случае если требуется отопление различных по типу зданий, теплопотребление каждого считается отдельно, полученные значения складываются и подобрать мощность котла нужно в соответствии с общей суммарной мощностью каждого отдельно стоящего задания.

Климатические условия вашего региона принимаются в соответствии с СП 131.13330 Строительная климатология. Данные по всем регионам России занесены в наш калькулятор расчета мощности котла.

Подобрать мощность котла по площади с учетом потребностей объекта в тепле на вентиляцию и горячую воду возможно только с более детальным расчетом. Его вы можете заказать в отделе сбыта котельного завода отправив заявку на электронный адрес sb@kvzr.ru или позвонив по телефонам (38-52) 29-97-41, 29-97-42.

Вопрос-ответ

  • Технические
    характеристики
  • Описание
    товара
  • Комплект
    поставки
  • Дополнительно
    потребуется
  • Подключение и
    монтаж
  • Сертификаты и
    гарантии
  • Отзывы о
    продукции
  • Видео
    обзор
  • Подбор
    котла
Документы завода
  • Сертификаты завода
  • Членство в СРО
  • Аттестованная технология сварки
  • Патенты на котельное оборудование
  • Товарные знаки
Смотреть все документы
Сертификат на водогрейные котлы на твердом и жидком топливе
Сертификат на водогрейные котлы на газе и жидком топливе
Сертификат на котлы отопительные паровые КП
Сертификат на топки
Сертификат на щиты управления
Сертификат на скиповые подъемники
Сертификат на золоуловители (циклоны)
Сертификат на конвейеры скребковые
Сертификат на дробилки
Сертификат на клапаны предохранительные
Сертификат на бункер-накопитель механизированный
Сертификат на автоматику газовых горелок
Сертификат о происхождении товара форма СТ-1
Членство в СРО
Членство в СРО
Аттестованная технология сварки
Свидетельство аттестованной технологии сварки
Патент на отопительный котел
Патент на водогрейный котел
Патент на топку водогрейного котла
Патент на водогрейный газовый котел
Патент на водогрейный котел
Патент на топочное устройство твердотопливного котла
Патент на водогрейный котел
HEATEXPERT товарный знак
KVZR товарный знак
STEAMEXPERT товарный знак
Другая похожая продукция
Котел КВр 0.3 К HeatExpert
Вид топкиРучная, Колосники
Максимальная тепловая мощность, МВт0.3
ТопливоТвердое, Уголь
Отапливаемая площадь, м²2300-3300
457 000 р. Цена с НДС
Котел КВД-0.3 МВт на дровах
Вид топкиРучная, Колосники, ОУР
Максимальная тепловая мощность, МВт0.3
ТопливоТвердое, Дрова
Отапливаемая площадь, м²2300-3300
458 000 р. Цена с НДС
Автоматический угольный котел 0.3 МВт
Лизинг
Вид топкиРетортная, Автоматическая
Максимальная тепловая мощность, МВт0.3
ТопливоТвердое, Уголь
Отапливаемая площадь, м²2300-3300
857 000 р. Цена с НДС
Котел на древесных отходах
Вид топкиРучная, Подовая
Максимальная тепловая мощность, МВт0.3
ТопливоТвердое, Дрова, Древесные отходы естественной влажности
Отапливаемая площадь, м²2300-3300
518 000 р. Цена с НДС
Котел с РПК
Лизинг
Вид топкиМеханическая, РПК
Максимальная тепловая мощность, МВт0.3
ТопливоТвердое, Уголь
Отапливаемая площадь, м²2300-3300
Цена по запросу
Котел 0.3 с ОУР
Вид топкиРучная, ОУР
Максимальная тепловая мощность, МВт0.3
ТопливоТвердое, Уголь
Отапливаемая площадь, м²2300-3300
436 000 р. Цена с НДС
Котел уголь дрова
Вид топкиРучная, Колосники, ОУР
Максимальная тепловая мощность, МВт0.3
ТопливоУголь, Дрова, Твердое
Отапливаемая площадь, м²2300-3300
465 000 р. Цена с НДС
Котел на опилках
Лизинг
Вид топкиВихревая, Автоматическая
Максимальная тепловая мощность, МВт0.3
ТопливоОпилки
Отапливаемая площадь, м²2300-3300
1 398 000 р. Цена с НДС
Пеллетный котел 0.25 МВт
Лизинг
Вид топкиРетортная, Автоматическая
Максимальная тепловая мощность, МВт0.25
ТопливоПеллеты
Отапливаемая площадь, м²1500-2600
789 000 р. Цена с НДС
Пеллетный котел 0.4 МВт
Лизинг
Вид топкиРетортная, Автоматическая
Максимальная тепловая мощность, МВт0.4
ТопливоПеллеты
Отапливаемая площадь, м²3000-4300
1 197 000 р. Цена с НДС
Вы просматривали эти товары
Котел на пеллетах 0.3 МВт
Лизинг
Вид топкиРетортная, Автоматическая
Максимальная тепловая мощность, МВт0.3
ТопливоПеллеты
Отапливаемая площадь, м²2300-3300
818 000 р. Цена с НДС
Пеллетный котел 0.25 МВт
Лизинг
Вид топкиРетортная, Автоматическая
Максимальная тепловая мощность, МВт0.25
ТопливоПеллеты
Отапливаемая площадь, м²1500-2600
789 000 р. Цена с НДС
Котел с РПК
Лизинг
Вид топкиМеханическая, РПК
Максимальная тепловая мощность, МВт0.7
ТопливоТвердое, Уголь
Отапливаемая площадь, м²5400-7700
840 000 р. Цена с НДС
Котел КВм 2.5 МВт с ТШПМ
Лизинг
Вид топкиТШПМ, Механическая
Максимальная тепловая мощность, МВт2.5
ТопливоТвердое, Уголь
Отапливаемая площадь, м²20900-27400
2 179 000 р. Цена с НДС
background